|

リレーコラム:若手デザイナーの眼差し
第117回 中村園香/建築家
このコラムページでは、若手デザイナーの皆さんの声をどんどん紹介いたします。作品が放つメッセージだけではない、若手デザイナーの想いや目指すところなどを、ご自身の言葉で語っていただきます。
●最近考えていること
独立してから住宅の設計をすることが多く、どのプロジェクトにも共通して、住宅に流れる時間について考えている。
一般的に住宅は、リビング、ダイニング、キッチン、風呂、トイレ、収納、寝室など、ある程度必要な機能が決まっている。そして与条件として、法規や環境などが加わる。住宅を設計するとき、それらの決まった機能を変化させるのは、住まい手である。若い夫婦2人で、今後子供が増えるのか、もしくは夫婦2人と中学生の子供2人の4人家族なのか、4人家族と祖父母の2世帯なのか、または夫婦の終の住処なのか、などなど。
設計するその瞬間の住まい手は固定的だが、5年後、10年後、20年後と時間を経るにつれて変化する。一度完成した建築の形は容易に変更することはできないが、日々変化する家族の住まい方、関係性を長い時間受け入れられる住宅をつくりたいと日々考えている。最近のプロジェクトを例に挙げて、住宅に流れる時間について考えてみる。
●CASE 01
この住宅は小さな15坪の平屋であり、家族4人が状況に応じて住み変わる。4人は独立した成人で、一度に住む人数は1人~3人と流動的であり、一緒に住む人々の組み合わせも変化する。家族4人のうち、誰がいつどのように暮らすか、さまざまな状況に対応できるよう、可能な限り1室空間とし、その両端を間仕切りによって分割可能な構成とした。
1人住まいの時はワンルームとして使用でき、2人住まいの時は間仕切りを用いて、個人の空間をつくる。個人の空間は共用の空間を挟んで角度を振って対峙させることで、適度なプライバシーを確保している。3人住まいの時は、両端の個人の空間と和室を寝室として使うことも可能である。また、敷地が台形であるため、角度を振って対峙させた空間はそれぞれ表の外部環境と裏の外部環境に対峙する。


▲平面図。(クリックで拡大)
|
 |
 
▲撮影:川崎璃乃。(クリックで拡大)
|
 |

|
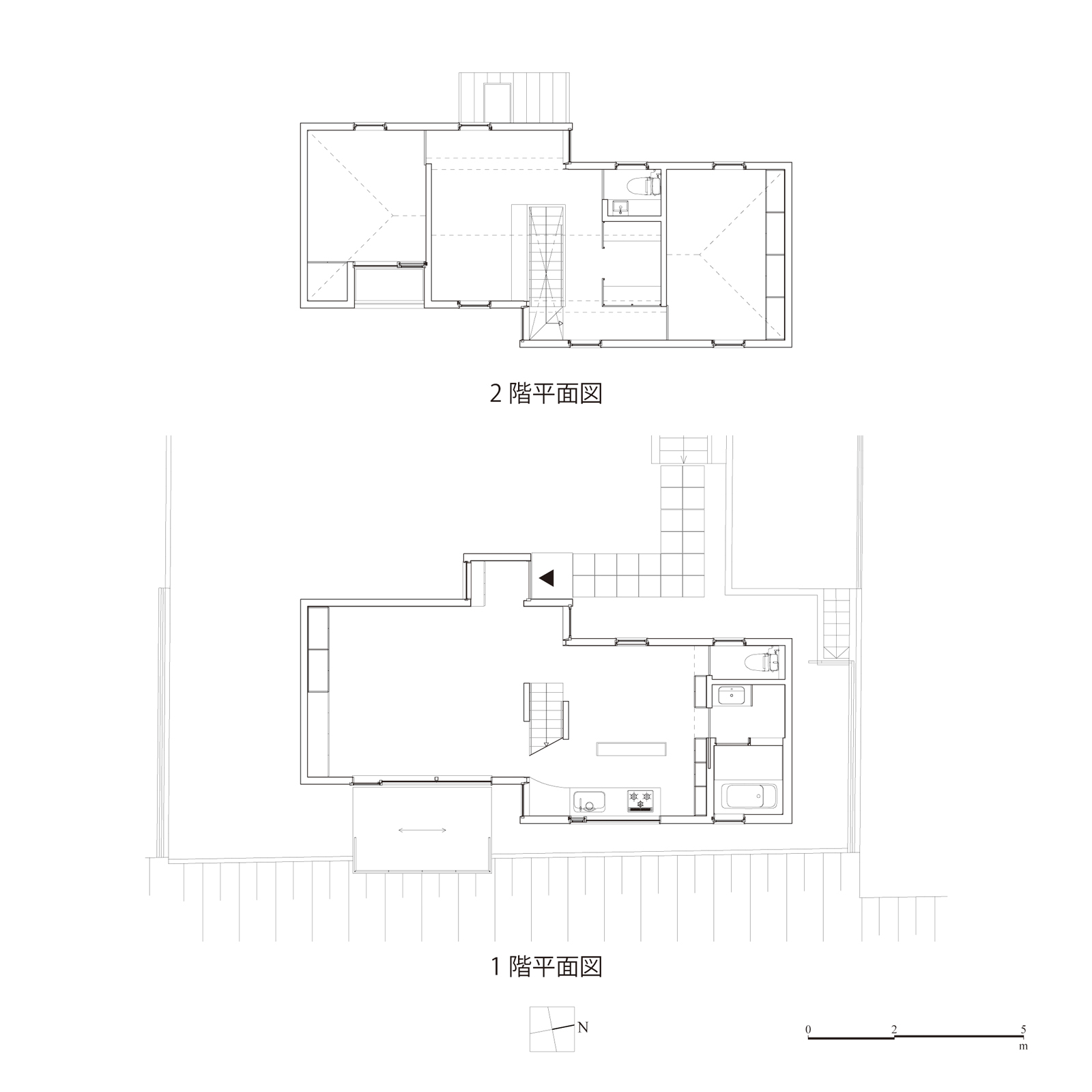
●CASE 02
この住宅は、既存住宅の改修であり、若い夫婦と生まれたばかりの双子が住む住宅である。既存の住宅は、いわゆる3LDKの住宅であり、1階は玄関から廊下を通り、LDKや風呂、トイレへアクセスし、2階は廊下を通り、各居室へとアクセスする。居室空間と移動空間の主従関係が明確になっている住宅であった。
改修設計では、すべての壁を取り払い、各階平面を6つの均等なグリッドに分解し、グリッドの交点に十字の壁を配置した。それにより、等価な四畳半の空間が連続する(実際には隅部の2か所は敷地形状に対応して切り欠かれている)構成とし、居室空間と移動空間の主従関係を消失させた。
1階は、住まい方に応じてリビング、ダイニングの場所が変更可能である。1グリッド=ダイニング、1グリッド=リビングとすることも可能だが、子供が小さい時は1グリッド=リビングダイニング、1グリッド=子供のプレイルームとすることも可能である。2階は、子供が小さい時は、1室空間として家族が一緒に使用し、成長するにつれて、家具や間仕切りによって個人の空間に分割可能である。子供が独立し、夫婦2人になった際には、また1室空間として広く使用したり、趣味の空間をつくることが可能である。
つまり、機能の交換や拡張が可能な空間としている。また、他とは異なる素材を配した十字の壁は、「空間の輪郭」と「モノ」の間のような存在であり、十字の壁を拠り所に住まい手が住み方を変化させることができる住宅を目指した。


▲各階平面図(改修前/改修後)。(クリックで拡大)
|
 |


▲1階。撮影:川崎璃乃。(クリックで拡大)
|
 |


▲2階。撮影:川崎璃乃。(クリックで拡大)

|
●CASE 03
この住宅は、2階建ての住宅で、夫婦2人の終の住処である。時には子供と孫が滞在する。夫婦2人のための住宅のため、2人の気配を感じながらプライバシーを確保できるよう、2つの空間をずらして配置し、それぞれの空間が互いに噛み合い、干渉し、緩やかにつながる1室空間の構成とした。2階は空間が噛み合ったことで現れた内屋根が、両端に配置した2つの個人の空間をつないでいる。
2つの個人の空間の中間である内屋根の下は、夫婦が共有する場所でもあり、子供や孫が来た際のゲストルームとしても使用可能である。また、空間をずらして配置することで生まれたスリット窓によって、周辺環境に配慮しながら十分な採光を確保している。


▲平面図。(クリックで拡大)
|
 |


▲2階イメージ。(クリックで拡大)
|
 |

|
●住宅の時間と機能
時間を経るにつれて家族の住まい方、関係性は変化する。住宅に流れる時間を考えると、いわゆるnLDKの住宅のように、機能と空間が1対1で結びつくのではなく、空間にさまざまな機能を許容できる可能性を保持させた住宅のつくり方、機能を超えた住宅の空間の在り方があるのではないか。加えて、1対1で対応していない空間と機能が建築の構成や周辺環境、構造などと影響を与え合うような設計をこれからも考えていきたい。
中村園香/Nakamura Sonoka
1990年生まれ。東京理科大学在学中、アーキヴィジョン広谷スタジオに勤務し実務経験を積み、卒業後、南米チリのMax Núñez Arquitectosに勤務。帰国後、OHMURA NAKAMURA ATELIER共同主宰として、設計活動をしている。
http://www.ohmuranakamuraatelier.jp
2022年1月18日更新。次回は中川宏文さんの予定です。
※本コラムのバックナンバー
http://pdweb.jp/column/index.shtml#mailmag
|